>>>back to TOP




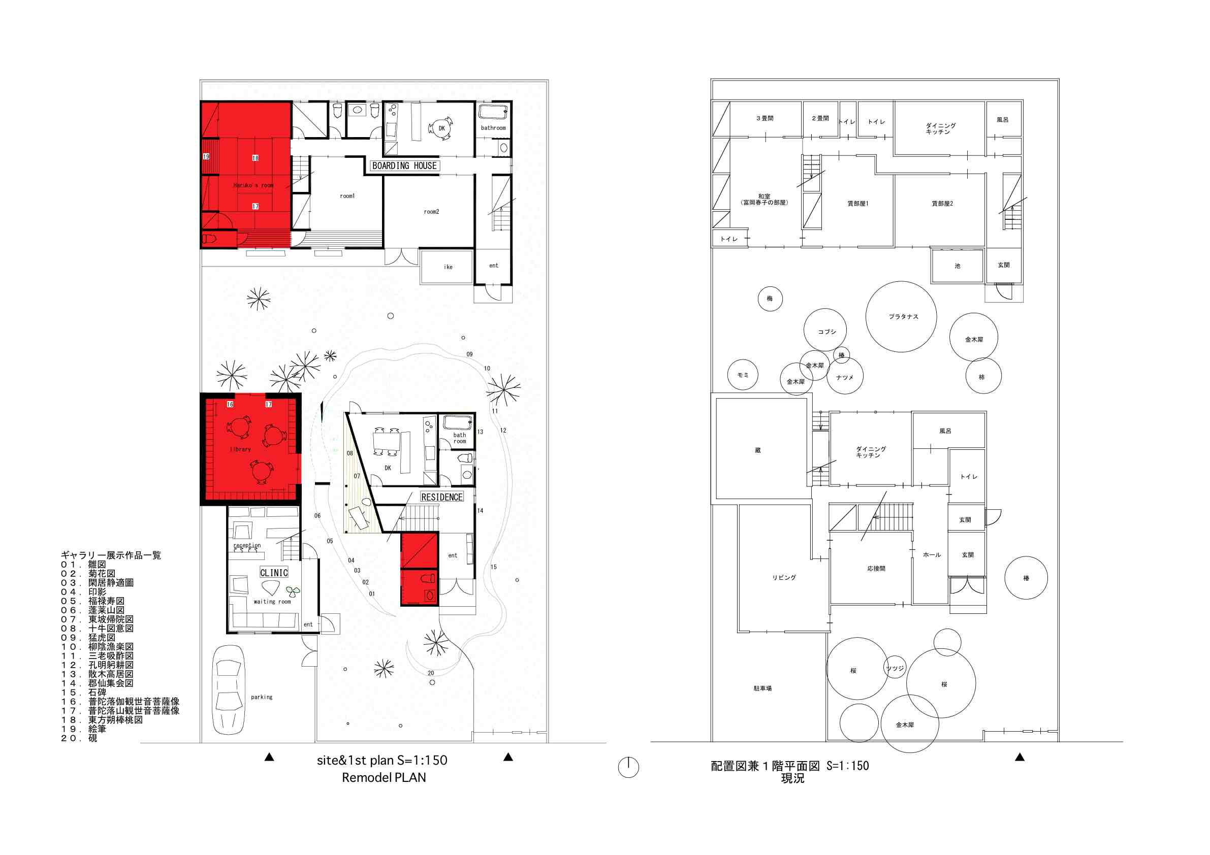
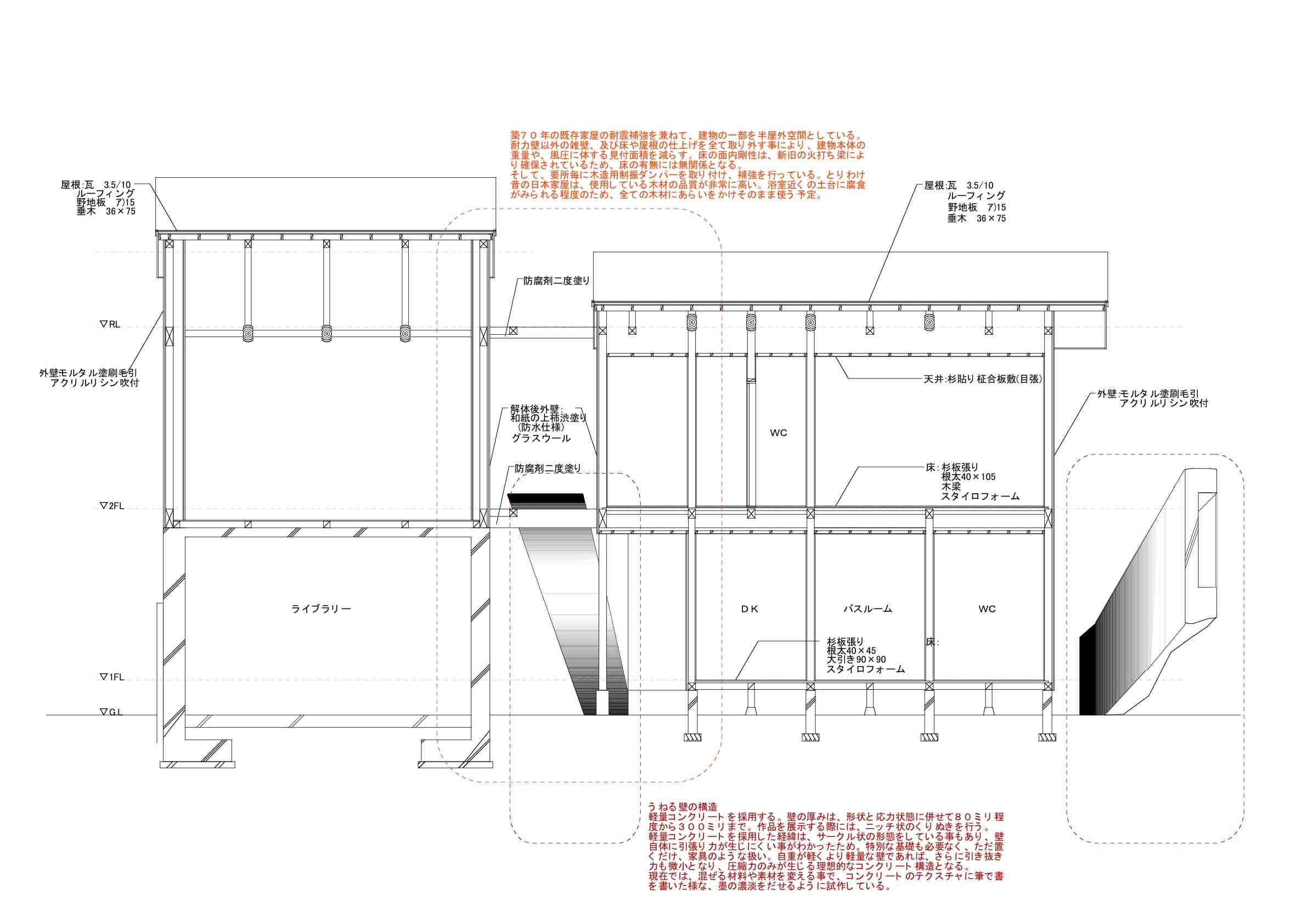
”PROJECT: Tomioka Tessai Gallery
”Architect: GRASSES + OUVI